Från ritbordet till inflyttning!

Vi på Skyhill har haft äran att hjälpa Bergstrands Utbildningar med deras nya utbildningslokaler i Märsta. Bergstrands utbildar framtidens yrkesfolk i en liten och familjär miljö men med utbildningar i toppklass och för att kunna göra det krävs bra lokaler.
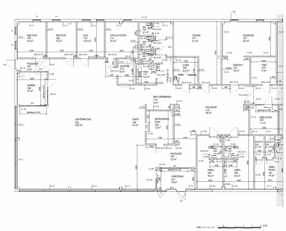
Projektet omfattar en total ombyggnation av två befintliga industrilokaler från 1970 och 1980-talet. Helt nya planlösningar har skapats och de tekniska installationerna har uppgraderats. Med hänsyn till hållbarhet och beställarens önskemål valde vi att behålla det befintliga klinkergolvet (då det är lång tid kvar av golvets tekniska livslängd) och anpassa projektets utformning efter det.
Våra roller i projektet har varit: arkitekt, tillgänglighetssakkunnig, kontrollansvarig och projektledare.
Stort tack till Bergstrands Utbildningar för förtroendet och ett fint samarbete!
Christian Ernst
Gruppchef arkitektur, Arkitekt MSA







.webp)



.webp)
